A development application has been lodged for a medical centre and three townhouses at 502 & 516 Newnham Road and 3 Naples Street, Wishart.
The proposal by Kabaro Pty Ltd would see two existing dwellings demolished to make way for a two-storey medical centre with 1,313 square metres of floor space, alongside three three-bedroom townhouses totalling 524 square metres.
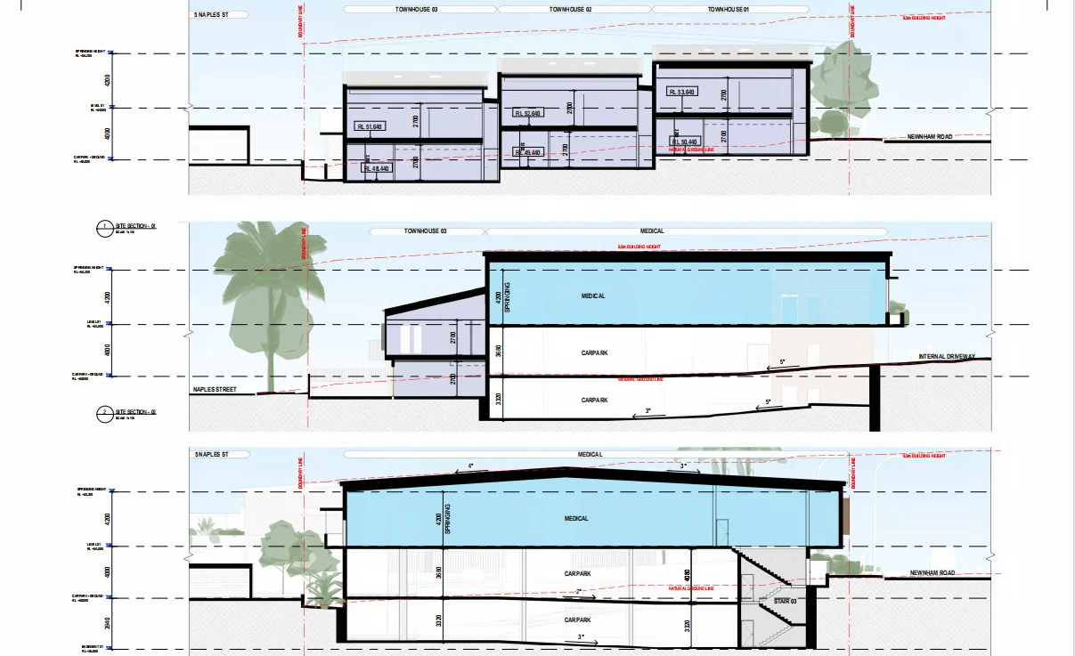
V Architecture designed the development to orient the medical centre toward Newnham Road while positioning the residential townhouses to front Naples Street, maintaining consistency with the street’s existing low-density character.
Development Overview
The 13,560-square-metre site currently contains two detached dwellings and car parking serving the adjacent Newnham Hotel. Key features include:
Emergency Dentist Brisbane — Same-Day Appointments, 7 Days a Week.
Open late Saturdays, Sundays and most public holidays
Pure Dentistry – Upper Mount Gravatt – (07) 3343 4869
11/1932-1974 Logan Rd, Upper Mount Gravatt
- Two-storey building height
- 60 car parking spaces for the medical centre in basement and at-grade parking
- Six car parking spaces for the townhouses (two per unit)
- 408 square metres of deep planting (intended to support large trees to screen the development from neighbours)

The medical centre would share vehicle access with the existing Newnham Hotel via an existing crossover on Newnham Road. Each townhouse would maintain individual driveway access from Naples Street.
Healthcare Need
An economic needs assessment accompanying the application identifies a significant shortage of medical services in the Mt Gravatt catchment area. It finds the catchment has only one GP per 1,000 residents, compared with 5.4 per 1,000 in Brisbane and 2.1 per 1,000 across Queensland.
Allied health professionals service 4.4 per 1,000 residents in the catchment, compared to 18.1 per 1,000 in Brisbane and 10.4 per 1,000 across Queensland. With the catchment forecast to grow by 11,370 residents by 2034, the facility would address a critical service gap.
Design Response
The architectural design uses the site’s topography to reduce visual scale. The building appears as single-storey along the Newnham Road frontage, with the lower storey becoming visible further into the site where the topography falls.

The facade incorporates varied materials, recesses and projections to break up building mass. Landscaping buffers and setbacks aim to maintain the subtropical character of the surrounding area.
Car Parking
The application proposes 60 car parking spaces for the medical centre, below the typically required 80 spaces. A traffic impact assessment justified the reduced provision through analysis of similar medical centres in Brisbane, which achieve parking rates averaging 3.4 spaces per 100 square metres.

The assessment noted that the shared access arrangement will remove 17 parking spaces currently serving the Newnham Hotel. However, parking surveys identified the hotel has 48 surplus spaces during peak periods, leaving 31 surplus spaces after the reduction.
Assessment Status
The application was lodged on 21 November 2025. As the site falls within the Low Density Residential Zone, the health care service exceeding 250 square metres triggers impact assessment. This means the application requires public notification, allowing residents to submit formal comments for or against the proposal during a designated period.
Planning consultant Urbis says the facility’s size meets community health needs and addresses the identified shortage of medical services in the area.
Published 10-February-2026.












